Объявления
0
 
Продажа домов
/ 2119
реклама
Объявление N 5231634

Краснодар: Новый дом на участке 8 соток

Вернуться к списку Предыдущее объявление Следующее объявление
5 300 000 руб.
Торг уместен
Проголосуйте за цену:
0
0
0
Голосовать
Предложить
Узнать о снижении цены
40 Площадь, м2
5 300 000 руб. Цена

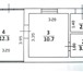
Уютный дом в СНТ «Победитель», ул. Шмидта, 20 — всего в нескольких минутах от городской инфраструктуры. Отличный вариант для постоянного проживания или дачи. О доме: Площадь: 40 м² Год постройки: 2019 Потолки: 3,5 м Материал стен: газоблок + утеплитель (минеральная вата) + кирпич Толщина стен: 40 см Крыша: профнастил, утеплена Фундамент: ленточный Планировка включает: Кухню 10,7 м² (с гипсокартонными стенами и полом из ОСБ, есть второй уровень — можно сделать спальное место) Жилую комнату 12,3 м² Коммуникации: Электричество 5 кВт Скважина Септик 12 м³ (2 по 6 м³) Отопление: печь-камин + тёплый пол (возможно электрическое отопление) Участок: 8 соток Фасад 20 м Огорожен забором из профнастила Есть распашные ворота Посажены: туи, можжевельник, сосны, голубика, яблоня, груша, черешня, вишня Инфраструктура рядом: Продуктовые магазины, пункты выдачи маркетплейсов — в 300 м Остановка маршрутки 105А Ходит школьный автобус Отличное место для жизни или инвестиций — участок позволяет построить ещё один дом или дополнительные постройки. Звоните — расскажем всё и покажем! Stepo.ru

Объявление в архиве
Бесплатно Можно без регистрации Просто, быстро, удобно
Дайте бесплатное объявление прямо сейчас!
И уже завтра вы сможете продать ваш товар
в любом из 1135 городов России.
Ваша прямая связь с 15 миллионами покупателей.
Без посредников.
Обратная связь и контакты
Политика конфиденциальности
© 2008-2026 Stepo.ru